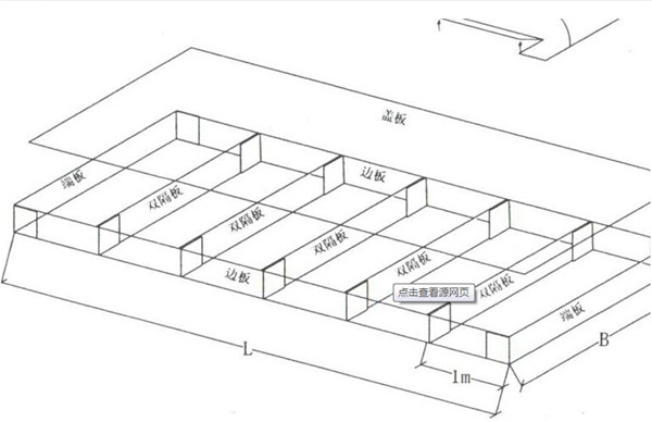
双隔板雷诺护垫是厚度在0.15-0.5m(含0.5m)的网箱结构。由特殊防腐处理的低碳钢丝经机器编织成的六边形双绞合钢丝网,制作成符合要求的工程构件,其具有更优于网箱的力学能力。
双隔板雷诺护垫沿长度方向每间隔1米采用双隔板格成独立的单元,雷诺护垫为一次成型生产,除盖板外,边板,端板,隔板及底板由一张连续不裁断的网面组成,不可采用独立的双层折叠网面通过绞合在底板上作为双隔板。
双隔板雷诺护垫技术参数:
网孔型号:60*80、70*90、80*100、90*110、100*120、110*130mm
钢丝直径:2.0-4.0mm
最小镀层量:≥215g/㎡
常用网箱尺寸:6*2*0.3m、4*2*0.25m、3*1*0.17m等。(具体尺寸可以根据工程设计要求定做)
用途:用作河道、岸坡、路基边坡护坡结构。既可防止河岸遭水流、风浪侵袭而破坏,又实现了水体与坡下土体间的自然对流交换功能,达到生态平衡。坡上植绿可增添景观、绿化效果。
双隔板雷诺护垫特点:
1. 提高河床边坡的稳定性
2. 保护河床防止冲刷
3. 提供河岸粗糙系数(m)之预定值
4. 护坡、护岸的绿化与生态保护、道的开发与治理,涉及到等截面铺设护
双隔板雷诺护垫生产厂家,请选择步鑫网业,我们是生产型工厂,全部产品都由我厂车间生产,省去中间商环节,价格在同类产品中更具有竞争优势。技术力量雄厚,质量检测体系完善,采用优质的原材料,严把质量关,欢迎您随时来厂参观考察。 咨询订购电话:15131835563、15103289922
